Что такое технический план?
В документе имеется как текстовое описание недвижимого имущества, так и его графическое изображение. В тексте содержится следующая информация:
- исходные данные;
- описание места, где находится объект;
- все необходимые измерения и расчеты;
- технические характеристики;
- заключение, полученное от кадастрового инженера.
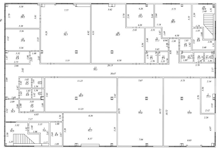
В техническом плане также присутствует схема объекта, представляющая собой чертеж с привязкой к той местности, где расположен объект. Значения всех поворотных точек указаны на схеме государственной системы координат. К графической части также относятся контур и поэтажный план здания.
Требования, предъявляемые к техническому плану, регламентируются Приказом Федеральной службы государственной регистрации, кадастра и картографии от 15 марта 2022 г. № П/0082 «Об установлении формы технического плана, требований к его подготовке и состава содержащихся в нем сведений».
Для чего нужен технический план?
Технический план объекта необходим для его постановки на кадастровый учет. Также этот документ требуется для оформления в Росреестре права собственности. Чтобы построить дом или зарегистрировать возведенное здание, обязательно нужно получить у кадастрового инженера технический план. Необходимость в данном документе возникает и в других случаях:
- При заключении сделок с недвижимым имуществом, в том числе оформлении долгосрочной аренды, дарения, наследования и купли-продажи.
- При возникновении необходимости исправления ошибок, которые могут быть связаны с несоответствием технических параметров или данных, отраженных в базе Росреестра. Чтобы исправить ситуацию, потребуется обратиться к кадастровому инженеру для того, чтобы он составил новый технический план после заново проведенных измерений.
- При внесении в базу Росреестра актуальных сведений. Если ранее недвижимое имущество не было зарегистрировано, то сведения о нем в государственном кадастре отсутствуют. Оформление сделок с таким объектом будет считаться незаконным. Для того, чтобы владелец мог получить кадастровый номер, ему потребуется иметь на руках готовый технический план.
- При оформлении перепланировки. Узаконивание внесенных в план объекта изменений при его переоборудовании или капитальном ремонте невозможно без изменения конфигурации в официальных документах. В ряде случаев перепланировка в обязательном порядке должна быть согласована с государственными инстанциями.
- При вводе в эксплуатацию построенного здания. После завершения всех строительных работ на объекте, новостройка должна быть зарегистрирована в Росреестре. Когда данные о ней появятся на публичной кадастровой карте РФ, собственник сможет получить актуальную выписку из ЕГРН.
- При оформлении прав на долю недвижимости законным владельцем.
- В случае легализации постройки, возведенной самовольно. Если строительство по каким-то причинам не было ранее согласовано с представителями уполномоченных органов, то его в обязательном порядке требуется узаконить. Для успешного результата нужно подготовить проект и заказать техплан, в котором будут отражены все характеристики объекта.
- При судебных разбирательствах, касающихся данного недвижимого объекта.
- При расчете рыночной стоимости. Она непосредственно зависит от размера кадастровой оценки недвижимости. Эти данные будут доступны только после того, как запись об объекте появится в ЕГРН.
- Для присвоения объекту почтового адреса. Если не заказать у кадастрового инженера техплан, то получить почтовый адрес владельцу недвижимости и зарегистрироваться по нему не удастся. Это право появляется у собственника только после завершения процедуры регистрации объекта в ЕГРН.
Объекты, на которые оформляется
Составление технического плана по закону разрешается для разных видов объектов, которые могут иметь различное назначение:
- Для частного или многоквартирного дома, а также нежилого здания.
- Для объектов незавершенного строительства.
- Для квартиры. Без технического плана собственнику не удастся осуществить первичную регистрацию жилья, а также регистрационную процедуру при изменении его характеристик.
- Для помещения. Составлением технического плана объекта в этом случае также должен заниматься кадастровый инженер.
- Для новостройки. Многоквартирный объект вводится в эксплуатацию только при условии, что информация о нем уже передана в Росреестр.
Необходимость в получении технического плана возникает и в ряде других ситуаций, поскольку его оформление считается обязательным и для иных типов сооружений.
Этапы оформления для технического плана
Процедура подготовки технического плана на объект недвижимости состоит из нескольких этапов:
- После поступления заявки от владельца объекта проводится консультация и составляется смета.
- Кадастровый инженер проверяет предоставленную клиентом документацию. Подписывается договор оказания услуг.
- Проводятся замеры. Этот этап является необязательным в том случае, если актуальный технический план нужен, к примеру, в связи с обнаружением ошибок в предыдущем документе.
- Составляется техплан. После обработки полученной информации кадастровый инженер создает чертеж с помощью специальной компьютерной программы. Также на этом этапе специалист составляет текстовую часть документа, куда вносит технические параметры объекта недвижимости, а потом оформляет приложение и заключение.
Готовый документ передается заказчику. Обычно разработанный техплан предоставляется в электронной форме, но по требованию клиента допускается выдача второго экземпляра, распечатанного на бумаге. Предоставление технического плана в государственные органы возможно только после заверения ЭЦП кадастрового инженера. Сотрудникам Росреестра документ передается на электронном носителе.
Сколько стоит:
Технический план на объекты капитального строительства
от 6800 рублей
